Viaductweg 41
Nieuw in verkoop
2211GP Noordwijkerhout Vraagprijs: € 470.000,- K.K.
Bouwjaar
1954
Oppervlakte
ca. 125 m²
Kamers
7 Kamers
Energielabel
C
Omschrijving
Deze tussenwoning van ca. 125 m² met veel potentie is gelegen op loopafstand van het centrum. De woning beschikt over maar liefst vijf slaapkamers, een zonnige achtertuin en ligt aan de voorzijde aan een rustig hofje met parkeerplaatsen en diverse speeltoestellen. Een prettige ligging met volop mogelijkheden om hier een fijn thuis van te maken.
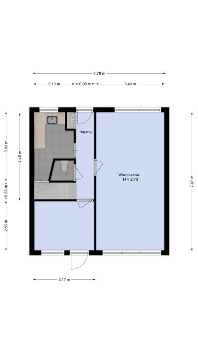
Hal voorzien van toilet, meterkast, trapopgang naar de eerste verdieping en toegang tot de woonkamer. De lichte doorzonwoonkamer beschikt over grote raampartijen aan zowel de voor- als achterzijde, wat zorgt voor een prettige lichtinval. Vanuit de hal is de dichte, eenvoudige keuken bereikbaar, voorzien van een keukenblok met boven- en onderkasten en een praktische kelderkast. Vanuit de hal bereikt u aan de achterzijde nog een extra ruimte, deze ruimte geeft u toegang tot de achtertuin, ideaal te gebruiken als bijkeuken.
Eerste verdieping:
De overloop geeft toegang tot alle vertrekken. Aan de voorzijde bevindt zich de royale ouderslaapkamer met twee vaste kasten en een wastafelmeubel. Tevens bevindt zich aan de voorzijde de badkamer, voorzien van een douche, toilet en wastafelmeubel. Daarnaast is er een aparte ruimte met aansluitingen voor wasmachine en droger. Aan de achterzijde zijn nog twee fijne slaapkamers gesitueerd, waarvan één met een vaste kast.
Tweede verdieping:
De ruime voorzolder is voorzien van een dakvenster, opstelling van de C.V.-combiketel en biedt toegang tot twee slaapkamers. De twee slaapkamers beschikken beiden over een vaste kast en een kleine dakkapel.
Tuin:
De woning heeft een brede, zonnige achtertuin welke is gelegen op het noordwesten met een ‘achterom’.
Inmiddels is de achtertuin voorzien van een nieuwe schutting aan de linker-en achterzijde van de tuin.
Verplichting tot zelfbewoning:
Deze woning wordt te koop aangeboden door de Woningstichting Sint Antonius van Padua en zal worden verkocht onder de voorwaarde dat de woning voor 'zelfbewoning' wordt gebruikt door de koper. Het hiernavolgende artikel zal dan ook in de koopovereenkomst worden opgenomen;
Artikel verplichting tot zelfbewoning:
Verkoper legt aan koper de verplichting op dat koper de onroerende zaak uitsluitend zal gebruiken voor eigen bewoning met eventueel zijn huisgenoten. Koper verbeurt bij (gedeeltelijke) niet-nakoming of overtreding van dit artikel ten behoeve van verkoper een zonder ingebrekestelling en rechterlijke tussenkomst onmiddellijk opeisbare boete ter grootte van € 50.000,= (zegge vijftigduizend euro), onverminderd de rechten van verkoper op eventuele verdere schadevergoeding, terwijl de verplichting om alsnog aan het gemaakte beding te voldoen onverminderd blijft bestaan. Koper zal in gebreke zijn door het enkele feit van (gedeeltelijke) niet-nakoming of overtreding van dit artikel. Deze bepaling geldt voor een periode van 10 jaar, ingaande op de datum van het notarieel transport waarbij koper de onroerende zaak verkrijgt. Deze zelfbewoningsplicht zal in de vorm van een kettingbeding worden opgenomen in de akte van levering.
Voorrang op een koopwoning:
U kunt voorrang krijgen op deze koopwoning als u een huurwoning achterlaat van een corporatie in de gemeente Noordwijk. Zo koopt u een woning die beter bij uw situatie past en komt de huurwoning weer vrij voor iemand anders.
Hoe werkt het?
Het is uiteraard mogelijk dat er meerdere (sociale) huurders van een corporatiewoning uit de gemeente Noordwijk gebruik willen maken van de voorrangsregeling. In dat geval komt de huurder met het beste voorstel als eerste in aanmerking om deze woning te kopen. Brengen meerdere geïnteresseerde hetzelfde bod uit? Dan geeft een loting de doorslag.
Huurders die nu een sociale huurwoning van een corporatie huren in de gemeente Noordwijk hebben voorrang op huurders die een vrijesectorwoning van een corporatie huren in de gemeente Noordwijk. Daarna hebben huurders van Padua voorrang op huurders van Stek. De gunning wordt altijd voorbehouden door Padua.
Wat zijn de voorwaarden?
• U woont in een huurwoning van een corporatie in de gemeente Noordwijk en het huurcontract staat op uw naam;
• U gaat zelf wonen in de woning die u koopt (zelfbewoningsplicht) en zegt de huurwoning op. De huurwoning moet leeg en onbewoond achtergelaten worden;
• U heeft langer dan een jaar een huurcontract voor onbepaalde tijd voor een huurwoning van een corporatie in de gemeente Noordwijk;
• U krijgt alleen voorrang als u minimaal de vraagprijs biedt. Biedt u onder de vraagprijs, dan krijgt u geen voorrang;
• U bent aanwezig tijdens de bezichtiging van de woning;
• U heeft geen andere woning(en) in eigendom;
• Bij de overdracht van de woning bij de notaris moet u een huuropzegging invullen van uw huurwoning die binnen 3 maanden plaatsvindt.
Inschrijven:
Indien u interesse heeft in deze woning, dan kunt u middels uw Move-account een voorstel uitbrengen op de woning. Wij willen u verzoeken om, naast het bedrag dat u wilt bieden op de woning, tevens aan te geven onder welke voorwaarden u uw voorstel doet, per wanneer u het notarieel transport plaats wilt laten vinden en of u momenteel een woning van een corporatie in de gemeente Noordwijk huurt. De deadline voor het doen van een bieding via Move is 25 februari om 17:00 uur. Na deze deadline leveren wij de ontvangen biedingen aan bij de Woningstichting. Na terugkoppeling zullen wij de geïnteresseerden uiterlijk 4 maart informeren.
* Woonoppervlakte ca. 125 m²;
* Perceeloppervlakte 144 m²;
* Energielabel C;
* De woning is voorzien van kunststofkozijnen m.u.v. de voordeur;
* Het gezellige (winkel) centrum van Noordwijkerhout, de duinen, het strand en het Oosterduinsemeer zijn op loop- en of fietsafstand te bereiken;
* Nabij diverse uitvalswegen richting Noordwijk, Leiden en Haarlem (N206);
* Er heeft een bouwtechnische keuring en asbest inventarisatie bij deze woning plaatsgevonden. Op aanvraag zijn de rapporten beschikbaar;
* Het notarieel transport van deze woning dient plaats te vinden bij notariskantoor van Dijk te Noordwijk;
* In de koopovereenkomst zullen de volgende artikelen van toepassing zijn Verplichting tot zelfbewoning, Niet zelf-bewoningsclausule verkoper, Ouderdomsclausule, Asbestclausule, Royementskosten, Meetcertificaat.
Lees volledige omschrijving
Indeling
Begane grond:Hal voorzien van toilet, meterkast, trapopgang naar de eerste verdieping en toegang tot de woonkamer. De lichte doorzonwoonkamer beschikt over grote raampartijen aan zowel de voor- als achterzijde, wat zorgt voor een prettige lichtinval. Vanuit de hal is de dichte, eenvoudige keuken bereikbaar, voorzien van een keukenblok met boven- en onderkasten en een praktische kelderkast. Vanuit de hal bereikt u aan de achterzijde nog een extra ruimte, deze ruimte geeft u toegang tot de achtertuin, ideaal te gebruiken als bijkeuken.
Eerste verdieping:
De overloop geeft toegang tot alle vertrekken. Aan de voorzijde bevindt zich de royale ouderslaapkamer met twee vaste kasten en een wastafelmeubel. Tevens bevindt zich aan de voorzijde de badkamer, voorzien van een douche, toilet en wastafelmeubel. Daarnaast is er een aparte ruimte met aansluitingen voor wasmachine en droger. Aan de achterzijde zijn nog twee fijne slaapkamers gesitueerd, waarvan één met een vaste kast.
Tweede verdieping:
De ruime voorzolder is voorzien van een dakvenster, opstelling van de C.V.-combiketel en biedt toegang tot twee slaapkamers. De twee slaapkamers beschikken beiden over een vaste kast en een kleine dakkapel.
Tuin:
De woning heeft een brede, zonnige achtertuin welke is gelegen op het noordwesten met een ‘achterom’.
Inmiddels is de achtertuin voorzien van een nieuwe schutting aan de linker-en achterzijde van de tuin.
Verplichting tot zelfbewoning:
Deze woning wordt te koop aangeboden door de Woningstichting Sint Antonius van Padua en zal worden verkocht onder de voorwaarde dat de woning voor 'zelfbewoning' wordt gebruikt door de koper. Het hiernavolgende artikel zal dan ook in de koopovereenkomst worden opgenomen;
Artikel verplichting tot zelfbewoning:
Verkoper legt aan koper de verplichting op dat koper de onroerende zaak uitsluitend zal gebruiken voor eigen bewoning met eventueel zijn huisgenoten. Koper verbeurt bij (gedeeltelijke) niet-nakoming of overtreding van dit artikel ten behoeve van verkoper een zonder ingebrekestelling en rechterlijke tussenkomst onmiddellijk opeisbare boete ter grootte van € 50.000,= (zegge vijftigduizend euro), onverminderd de rechten van verkoper op eventuele verdere schadevergoeding, terwijl de verplichting om alsnog aan het gemaakte beding te voldoen onverminderd blijft bestaan. Koper zal in gebreke zijn door het enkele feit van (gedeeltelijke) niet-nakoming of overtreding van dit artikel. Deze bepaling geldt voor een periode van 10 jaar, ingaande op de datum van het notarieel transport waarbij koper de onroerende zaak verkrijgt. Deze zelfbewoningsplicht zal in de vorm van een kettingbeding worden opgenomen in de akte van levering.
Voorrang op een koopwoning:
U kunt voorrang krijgen op deze koopwoning als u een huurwoning achterlaat van een corporatie in de gemeente Noordwijk. Zo koopt u een woning die beter bij uw situatie past en komt de huurwoning weer vrij voor iemand anders.
Hoe werkt het?
Het is uiteraard mogelijk dat er meerdere (sociale) huurders van een corporatiewoning uit de gemeente Noordwijk gebruik willen maken van de voorrangsregeling. In dat geval komt de huurder met het beste voorstel als eerste in aanmerking om deze woning te kopen. Brengen meerdere geïnteresseerde hetzelfde bod uit? Dan geeft een loting de doorslag.
Huurders die nu een sociale huurwoning van een corporatie huren in de gemeente Noordwijk hebben voorrang op huurders die een vrijesectorwoning van een corporatie huren in de gemeente Noordwijk. Daarna hebben huurders van Padua voorrang op huurders van Stek. De gunning wordt altijd voorbehouden door Padua.
Wat zijn de voorwaarden?
• U woont in een huurwoning van een corporatie in de gemeente Noordwijk en het huurcontract staat op uw naam;
• U gaat zelf wonen in de woning die u koopt (zelfbewoningsplicht) en zegt de huurwoning op. De huurwoning moet leeg en onbewoond achtergelaten worden;
• U heeft langer dan een jaar een huurcontract voor onbepaalde tijd voor een huurwoning van een corporatie in de gemeente Noordwijk;
• U krijgt alleen voorrang als u minimaal de vraagprijs biedt. Biedt u onder de vraagprijs, dan krijgt u geen voorrang;
• U bent aanwezig tijdens de bezichtiging van de woning;
• U heeft geen andere woning(en) in eigendom;
• Bij de overdracht van de woning bij de notaris moet u een huuropzegging invullen van uw huurwoning die binnen 3 maanden plaatsvindt.
Inschrijven:
Indien u interesse heeft in deze woning, dan kunt u middels uw Move-account een voorstel uitbrengen op de woning. Wij willen u verzoeken om, naast het bedrag dat u wilt bieden op de woning, tevens aan te geven onder welke voorwaarden u uw voorstel doet, per wanneer u het notarieel transport plaats wilt laten vinden en of u momenteel een woning van een corporatie in de gemeente Noordwijk huurt. De deadline voor het doen van een bieding via Move is 25 februari om 17:00 uur. Na deze deadline leveren wij de ontvangen biedingen aan bij de Woningstichting. Na terugkoppeling zullen wij de geïnteresseerden uiterlijk 4 maart informeren.
Bijzonderheden
* Bouwjaar: 1954;* Woonoppervlakte ca. 125 m²;
* Perceeloppervlakte 144 m²;
* Energielabel C;
* De woning is voorzien van kunststofkozijnen m.u.v. de voordeur;
* Het gezellige (winkel) centrum van Noordwijkerhout, de duinen, het strand en het Oosterduinsemeer zijn op loop- en of fietsafstand te bereiken;
* Nabij diverse uitvalswegen richting Noordwijk, Leiden en Haarlem (N206);
* Er heeft een bouwtechnische keuring en asbest inventarisatie bij deze woning plaatsgevonden. Op aanvraag zijn de rapporten beschikbaar;
* Het notarieel transport van deze woning dient plaats te vinden bij notariskantoor van Dijk te Noordwijk;
* In de koopovereenkomst zullen de volgende artikelen van toepassing zijn Verplichting tot zelfbewoning, Niet zelf-bewoningsclausule verkoper, Ouderdomsclausule, Asbestclausule, Royementskosten, Meetcertificaat.
Kenmerken
| Bouw en ligging | |
|---|---|
| Soort woning | Eengezinswoning |
| Type woning | Tussenwoning |
| Bouwjaar | 1954 |
| Ligging | Nabij het centrum |
| Dak | Zadeldak |
| Oppervlakten en inhoud | |
| Perceeloppervlakte | 144 |
| Woonoppervlakte | ca. 125 m² |
| Inhoud | ca. 464 m³ |
| Aantal kamers | 7 |
| Energie en onderhoud | |
| Energielabel | C |
| Isolatie | Gedeeltelijk dubbel glas |
| Verwarming/warm water | CV combiketel |
| Merk/type | Remeha Tzerra Ace-Matic |
| Bouwjaar | 2023 |
| Meterkast | Aardlekschakelaar |
| Aantal groepen | 5 |
| Onderhoud binnen | Redelijk |
| Onderhoud buiten | Redelijk |
| Tuin | |
| Tuin | Achtertuin, Voortuin |
| Ligging tuin | Noord-west |
| Kwaliteit tuin | Normaal |
| Lengte tuin | ca. 8 meter |
| Breedte tuin | ca. 7 meter |
| Garage en parkeren | |
| Parkeerfaciliteiten | Openbaar parkeren |