Poldermolen 15
Nieuw in verkoop
2211PV Noordwijkerhout Vraagprijs: € 389.000,- K.K.
Bouwjaar
ca. 2009
Oppervlakte
ca. 75 m²
Kamers
3 Kamers
Energielabel
A+
Omschrijving
Bent u op zoek naar een licht en verzorgd 3-kamerappartement met balkon? Dan nodigen wij u graag uit om dit appartement te komen bekijken.
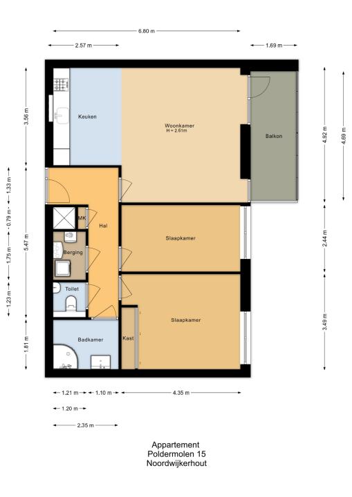
Het appartement is gelegen op de 3e verdieping van het moderne appartementencomplex “Alant” en beschikt over een ruime woonkamer, twee slaapkamers en een eigen berging op de begane grond. Het appartement ligt in een rustige en kindvriendelijke woonwijk, op korte afstand van het gezellige centrum van Noordwijkerhout.
U komt binnen in een ruime hal met toegang tot alle vertrekken. In de hal bevinden zich o.a. de meterkast, het separate toilet met fonteintje en een praktische inpandige berg-/technische ruimte. In deze ruimte zijn de aansluitingen voor wasmachine en droger, de mechanische warmte terugwin installatie, en de CV-combiketel aanwezig. Beide systemen zijn in december 2025 nieuw geïnstalleerd.
De lichte woonkamer beschikt over een fraaie laminaatvloer en grote raampartijen die tot op de grond reiken, waardoor er veel daglicht binnenvalt. Vanuit de woonkamer heeft u een levendig uitzicht over de straat.
Binnen en buiten:
Aansluitend heeft u toegang tot het zonnige balkon, welke gelegen is op het zuid-oosten. In de woonkamer bevindt zich de open keuken, in lichte kleurstelling, welke voorzien is van diverse inbouwapparatuur zoals: 4-pitsgaskookplaat, rvs afzuigkap, koel-/vriescombinatie, vaatwasmachine, Quooker en combi-oven/magnetron.
Het appartement beschikt over twee slaapkamers, waaronder een royale hoofdslaapkamer en een tweede slaapkamer. De badkamer is geheel betegeld en voorzien van een douche en een badkamermeubel met spiegelkast.
Het gehele appartement is voorzien van elektrische zonwering.
Begane grond:
De overdekte entree is voorzien van een videofooninstallatie en brievenbussen. Via de afgesloten centrale hal bereikt u het trappenhuis en de lift naar de bovengelegen verdiepingen. Op de begane grond bevindt zich tevens de inpandige berging.
* Externe berging: ca. 4 m²;
* Bouwjaar: ca. 2009;
* Energielabel: A+;
* De servicekosten bedragen ca. € 183 ,= p/m;
* Aan de voorzijde van het gebouw zijn ruime (gratis) parkeermogelijkheden;
* Op fietsafstand van duinen, strand en recreatieplas het Oosterduinsemeer;
* Goede verbinding met uitvalswegen richting Noordwijk, Leiden en Haarlem (N206);
* Op de koopovereenkomst zijn de volgende additionele artikelen van toepassing: Ouderdomsclausule, Royementskosten en Meetinstructie.
Lees volledige omschrijving
Het appartement is gelegen op de 3e verdieping van het moderne appartementencomplex “Alant” en beschikt over een ruime woonkamer, twee slaapkamers en een eigen berging op de begane grond. Het appartement ligt in een rustige en kindvriendelijke woonwijk, op korte afstand van het gezellige centrum van Noordwijkerhout.
Indeling
Appartement:U komt binnen in een ruime hal met toegang tot alle vertrekken. In de hal bevinden zich o.a. de meterkast, het separate toilet met fonteintje en een praktische inpandige berg-/technische ruimte. In deze ruimte zijn de aansluitingen voor wasmachine en droger, de mechanische warmte terugwin installatie, en de CV-combiketel aanwezig. Beide systemen zijn in december 2025 nieuw geïnstalleerd.
De lichte woonkamer beschikt over een fraaie laminaatvloer en grote raampartijen die tot op de grond reiken, waardoor er veel daglicht binnenvalt. Vanuit de woonkamer heeft u een levendig uitzicht over de straat.
Binnen en buiten:
Aansluitend heeft u toegang tot het zonnige balkon, welke gelegen is op het zuid-oosten. In de woonkamer bevindt zich de open keuken, in lichte kleurstelling, welke voorzien is van diverse inbouwapparatuur zoals: 4-pitsgaskookplaat, rvs afzuigkap, koel-/vriescombinatie, vaatwasmachine, Quooker en combi-oven/magnetron.
Het appartement beschikt over twee slaapkamers, waaronder een royale hoofdslaapkamer en een tweede slaapkamer. De badkamer is geheel betegeld en voorzien van een douche en een badkamermeubel met spiegelkast.
Het gehele appartement is voorzien van elektrische zonwering.
Begane grond:
De overdekte entree is voorzien van een videofooninstallatie en brievenbussen. Via de afgesloten centrale hal bereikt u het trappenhuis en de lift naar de bovengelegen verdiepingen. Op de begane grond bevindt zich tevens de inpandige berging.
Bijzonderheden
* Woonoppervlak: ca. 75 m² ;* Externe berging: ca. 4 m²;
* Bouwjaar: ca. 2009;
* Energielabel: A+;
* De servicekosten bedragen ca. € 183 ,= p/m;
* Aan de voorzijde van het gebouw zijn ruime (gratis) parkeermogelijkheden;
* Op fietsafstand van duinen, strand en recreatieplas het Oosterduinsemeer;
* Goede verbinding met uitvalswegen richting Noordwijk, Leiden en Haarlem (N206);
* Op de koopovereenkomst zijn de volgende additionele artikelen van toepassing: Ouderdomsclausule, Royementskosten en Meetinstructie.
De makelaar aan het woord:
Het balkon vormt een fijne plek om buiten te zitten. Dankzij de gunstige ligging is het een zonnig balkon met uitzicht over de wijk.
Kenmerken
| Bouw en ligging | |
|---|---|
| Soort appartement | Portiekflat |
| Bouwjaar | ca. 2009 |
| Ligging | In woonwijk |
| Dak | Plat dak |
| Oppervlakten en inhoud | |
| Woonoppervlakte | ca. 75 m² |
| Gebouwgebonden buitenruimte | ca. 8 m² |
| Externe bergruimte | ca. 4 m² |
| Inhoud | ca. 243 m³ |
| Aantal kamers | 3 |
| Woonlaag | 3 |
| Energie en onderhoud | |
| Energielabel | A+ |
| Isolatie | Volledig geisoleerd |
| Verwarming | CV combiketel, WTW-systeem |
| Verwarming CV merk/type | Remeha Aventa Ace |
| Verwarming CV bouwjaar | 2025 |
| Warm water CV merk/type | Remeha Aventa Ace |
| Warm water CV bouwjaar | 2025 |
| Onderhoud binnen | Goed |
| Onderhoud buiten | Goed |
| Onderdelen | Buitenzonwering, WTW |
| Balkon | |
| Balkon | 1 |
| Garage en parkeren | |
| Parkeerfaciliteiten | Openbaar parkeren |
| Berging/schuur | |
| Berging | Inpandige berging |
| Vereniging van eigenaars | |
| Servicekosten | € 183,- Per maand |
| VvE - Inschrijving KvK | ja |
| VvE - Jaarlijkse vergadering | ja |
| VvE - Periodieke bijdrage | ja |
| VvE - Reservefonds aanwezig | ja |
| VvE - Onderhoudsplan | ja |
| VvE - Opstalverzekering | ja |