Bouwjaar
ca. 1969
Oppervlakte
ca. 141 m²
Kamers
5 Kamers
Energielabel
A
Omschrijving
Van harte welkom in deze verrassend ruime en duurzame gezinswoning, gelegen in de buurt ‘Schilderswijk’ in Lisse.
In een rustig hofje, midden in een kindvriendelijke woonomgeving, ligt deze uitstekend onderhouden tussenwoning. Dankzij de uitbouw aan de achterzijde, de sfeervolle erker aan de voorzijde en een royale tweede verdieping biedt deze woning ongekend veel leefruimte. De woning is niet alleen ruim, maar met het energielabel-A en de aanwezige zonnepanelen ook energiezuinig.
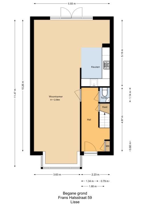
Entree, ruime hal met meterkast, toilet met fontein en een praktische trapkast. De lichte doorzonwoonkamer is een heerlijke plek om te verblijven. De erker aan de voorzijde zorgt voor een speelse indeling en extra lichtinval, terwijl de uitbouw aan de achterzijde met openslaande deuren een naadloze verbinding vormt met de zonnige tuin.
De open keuken is van alle gemakken voorzien, waaronder een 5-pits gasfornuis, vaatwasser, een combi-oven en een koelkast met vrieslades.
Eerste verdieping:
Overloop met toegang tot drie goed bemeten slaapkamers.
De badkamer, aan de voorzijde gelegen, is voorzien van modern tegelwerk en compleet uitgevoerd met een douche, tweede toilet, een dubbele wastafel met meubel, spiegel- en badkamerkast en een designradiator.
Tweede verdieping:
Via een vaste trap bereikt u de voorzolder. Deze is voorzien van een dakraam en biedt veel praktische ruimte met de aansluitingen voor wasapparatuur, de opstelling van de CV-installatie en de omvormer voor de zonnepanelen.
Ook is er extra bergruimte achter de knieschotten aanwezig. Dankzij de dakkapel aan de achterzijde en het dakraam aan de voorzijde is op deze verdieping een verrassend lichte en volwaardige vierde slaapkamer ontstaan.
Tuin:
De verzorgde achtertuin is dé plek voor zonliefhebbers. Door de ligging op het zuidwesten geniet u hier van de middag- en avondzon. De tuin beschikt over een stenen berging met elektra en achterom.
Locatie:
De locatie is perfect voor wie houdt van gemak. Op korte afstand vindt u diverse basisscholen, speelvoorzieningen en het gezellige centrum van Lisse met een uitgebreid aanbod aan winkels en horeca.
Ook sportfaciliteiten en recreatiegebieden zoals de waterleidingduinen en het strand zijn snel bereikbaar.
Bereikbaarheid:
Lisse ligt zeer centraal in de bollenstreek. De belangrijke uitvalswegen richting Amsterdam, Schiphol, Leiden en Den Haag (A4 en A44) zijn vlot bereikbaar.
Reis je liever met de trein? De NS-stations van zowel Sassenheim als Hillegom liggen op circa 10 tot 15 minuten fietsafstand, waardoor u een snelle verbinding heeft met de grote steden.
* Perceeloppervlakte 153 m²;
* Energielabel A;
* Voorzien van 10 zonnepanelen;
* Royale uitbouw aan de achterzijde en erker aan de voorzijde;
* Zonnige tuin op het zuidwesten;
* Gelegen in een rustige, autoluwe straat;
* Op de koopovereenkomst zijn de volgende additionele artikelen van toepassing: Ouderdomsclausule, Asbestclausule, Royementskosten en Meetinstructie.
Lees volledige omschrijving
In een rustig hofje, midden in een kindvriendelijke woonomgeving, ligt deze uitstekend onderhouden tussenwoning. Dankzij de uitbouw aan de achterzijde, de sfeervolle erker aan de voorzijde en een royale tweede verdieping biedt deze woning ongekend veel leefruimte. De woning is niet alleen ruim, maar met het energielabel-A en de aanwezige zonnepanelen ook energiezuinig.
Indeling
Begane grond:Entree, ruime hal met meterkast, toilet met fontein en een praktische trapkast. De lichte doorzonwoonkamer is een heerlijke plek om te verblijven. De erker aan de voorzijde zorgt voor een speelse indeling en extra lichtinval, terwijl de uitbouw aan de achterzijde met openslaande deuren een naadloze verbinding vormt met de zonnige tuin.
De open keuken is van alle gemakken voorzien, waaronder een 5-pits gasfornuis, vaatwasser, een combi-oven en een koelkast met vrieslades.
Eerste verdieping:
Overloop met toegang tot drie goed bemeten slaapkamers.
De badkamer, aan de voorzijde gelegen, is voorzien van modern tegelwerk en compleet uitgevoerd met een douche, tweede toilet, een dubbele wastafel met meubel, spiegel- en badkamerkast en een designradiator.
Tweede verdieping:
Via een vaste trap bereikt u de voorzolder. Deze is voorzien van een dakraam en biedt veel praktische ruimte met de aansluitingen voor wasapparatuur, de opstelling van de CV-installatie en de omvormer voor de zonnepanelen.
Ook is er extra bergruimte achter de knieschotten aanwezig. Dankzij de dakkapel aan de achterzijde en het dakraam aan de voorzijde is op deze verdieping een verrassend lichte en volwaardige vierde slaapkamer ontstaan.
Tuin:
De verzorgde achtertuin is dé plek voor zonliefhebbers. Door de ligging op het zuidwesten geniet u hier van de middag- en avondzon. De tuin beschikt over een stenen berging met elektra en achterom.
Locatie:
De locatie is perfect voor wie houdt van gemak. Op korte afstand vindt u diverse basisscholen, speelvoorzieningen en het gezellige centrum van Lisse met een uitgebreid aanbod aan winkels en horeca.
Ook sportfaciliteiten en recreatiegebieden zoals de waterleidingduinen en het strand zijn snel bereikbaar.
Bereikbaarheid:
Lisse ligt zeer centraal in de bollenstreek. De belangrijke uitvalswegen richting Amsterdam, Schiphol, Leiden en Den Haag (A4 en A44) zijn vlot bereikbaar.
Reis je liever met de trein? De NS-stations van zowel Sassenheim als Hillegom liggen op circa 10 tot 15 minuten fietsafstand, waardoor u een snelle verbinding heeft met de grote steden.
Bijzonderheden
* Woonoppervlakte van ca. 142 m²* Perceeloppervlakte 153 m²;
* Energielabel A;
* Voorzien van 10 zonnepanelen;
* Royale uitbouw aan de achterzijde en erker aan de voorzijde;
* Zonnige tuin op het zuidwesten;
* Gelegen in een rustige, autoluwe straat;
* Op de koopovereenkomst zijn de volgende additionele artikelen van toepassing: Ouderdomsclausule, Asbestclausule, Royementskosten en Meetinstructie.
De verkoper aan het woord:
Wat ons huis bijzonder maakt is de ruimte. Door de grote uitbouw is het echt een fijne leefplek. In de zomer zetten we de openslaande deuren open en leven we volop in de zonnige tuin op het zuiden. Aan de voorkant is het juist heerlijk rustig, met uitzicht op het groene, autoluwe hofje waar kinderen veilig kunnen spelen. Dat gaf ons altijd een ontspannen gevoel.
Kenmerken
| Bouw en ligging | |
|---|---|
| Soort woning | Eengezinswoning |
| Type woning | Tussenwoning |
| Bouwjaar | ca. 1969 |
| Ligging | Aan rustige weg, In woonwijk |
| Dak | Zadeldak |
| Oppervlakten en inhoud | |
| Perceeloppervlakte | 153 m² |
| Woonoppervlakte | ca. 141 m² |
| Externe bergruimte | ca. 8 m² |
| Inhoud | ca. 489 m³ |
| Aantal kamers | 5 |
| Energie en onderhoud | |
| Energielabel | A |
| Isolatie | Dakisolatie, Muurisolatie, Vloerisolatie, Gedeeltelijk dubbel glas |
| Verwarming/warm water | CV combiketel |
| Merk/type | Remeha Calenta 40c |
| Bouwjaar | 2016 |
| Onderhoud binnen | Goed |
| Onderhoud buiten | Goed |
| Onderdelen | Buitenzonwering, Zonnepanelen |
| Tuin | |
| Tuin | Achtertuin, Voortuin |
| Ligging tuin | Zuid-west |
| Kwaliteit tuin | Fraai aangelegd |
| Lengte tuin | 7,5 meter |
| Breedte tuin | 6 meter |
| Garage en parkeren | |
| Parkeerfaciliteiten | Openbaar parkeren |
| Berging/schuur | |
| Berging | Vrijstaande stenen schuur |
| Diversen | |
| Oplevering | In overleg |