Bouwjaar
ca. 1966
Oppervlakte
ca. 156 m²
Kamers
6 Kamers
Energielabel
B
Omschrijving
In een rustige straat in de populaire Victorwijk van Noordwijkerhout staat dit verrassend ruime en prima onderhouden hoekwoonhuis met garage. De woning is aan de zij- en achterzijde uitgebouwd en beschikt over een woonoppervlakte van circa 156 m² op een perceel van 295 m². Met maar liefst 5 slaapkamers, 2 badkamers, een royale woonkamer, woon-eetkeuken, 9 zonnepanelen en een zonnige, beschutte zijtuin is dit een ideale gezinswoning!
De woning is door de jaren heen gemoderniseerd. In 2014 is de woning verbouwd. De voor- en achtergevel, vloer en dak zijn daarbij geïsoleerd. De zijgevel was in een eerder stadium al geïsoleerd. De buitenzijde van de woning is voor het laatst in 2023 volledig geschilderd. De buitenmuur is opnieuw gevoegd en geïmpregneerd. Dit alles zorgt voor een comfortabel huis met een verzorgde uitstraling.
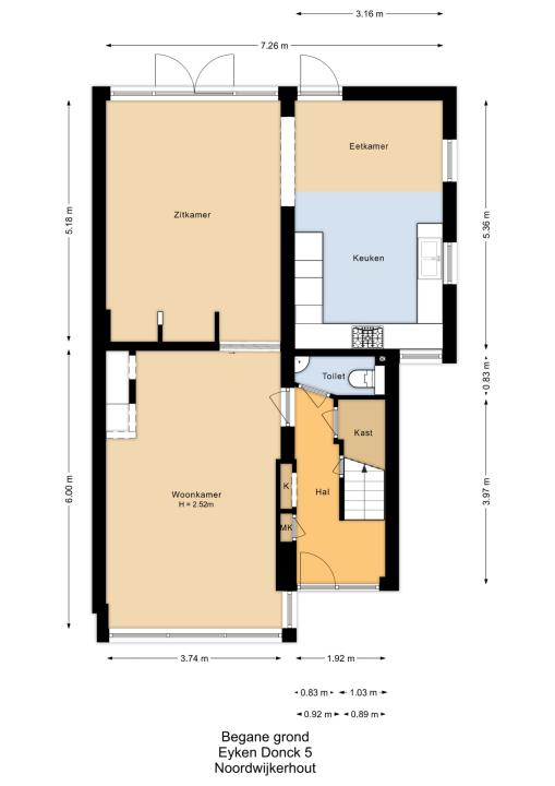
Via de entree kom je in de hal met toilet en trapopgang naar de verdieping. De ruime en lichte woonkamer is verdeeld in twee sfeervolle gedeeltes. Aan de voorzijde bevindt zich een gezellig zitgedeelte met haard, terwijl aan de achterzijde een tweede royale zithoek is gecreëerd. Dankzij de openslaande deuren is er direct contact met de achtertuin.
Aansluitend bevindt zich de gezellige woon-eetkeuken in U-opstelling, voorzien van diverse inbouwapparatuur.
Eerste verdieping:
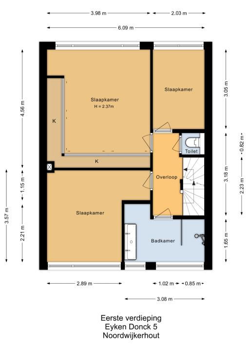
Op de eerste verdieping zijn drie slaapkamers aanwezig. Aan de achterzijde bevindt zich de ruime ouderslaapkamer met vaste kasten en daarnaast nog een extra slaapkamer. Aan de voorzijde ligt een flinke, zonnige slaapkamer. Ook vind je hier de in 2023 vergrote luxe badkamer, voorzien van een inloopdouche en een dubbel wastafelmeubel. Op de overloop is daarnaast een separaat tweede toilet aanwezig.
Tweede verdieping:
De tweede verdieping is verrassend ruim en praktisch ingedeeld met nog eens twee slaapkamers en een tweede badkamer. Zowel aan de voor- als achterzijde bevindt zich een ruime slaapkamer, beide voorzien van een dakkapel. Hierdoor is ook deze verdieping heerlijk licht. De tweede badkamer beschikt over een douche en wastafelmeubel. Op de overloop is een kast aanwezig met aansluiting voor wasmachine en droger. Boven deze verdieping bevindt zich bovendien nog een bergvliering.
Tuin:
De buitenruimte is nog een van de grote pluspunten van deze woning. Naast een voortuin en achtertuin beschikt de woning over een royale zonnige en beschutte zijtuin. Door de gunstige ligging, de ruimte en de bezonning zijn hier eenvoudig meerdere terrassen te creëren. Of je nu wilt genieten van de zon, wilt tuinieren of ruimte zoekt voor spelende kinderen: deze tuin biedt volop mogelijkheden. Achter in de tuin bevindt zich de ruime garage, die momenteel in gebruik is als berging.
* Rustige straat in een prettige woonomgeving;
* Aan de zij- en achterzijde uitgebouwd;
* Perceeloppervlakte 295 m²;
* 5 slaapkamers;
* 2 badkamers;
* Royale woonkamer van circa 40 m²;
* Gezellige woon-eetkeuken;
* 9 zonnepanelen;
* In 2014 verbouwd en volledig geïsoleerd;
* In 2023 volledig geschilderd aan de buitenzijde;
* Buitenmuur opnieuw gevoegd en geïmpregneerd;
* Tweede verdieping met dakkapellen aan voor- en achterzijde;
* Energielabel B;
* Mogelijkheid om parkeergelegenheid op eigen terrein te realiseren;
* Op korte afstand van uitvalswegen;
* Op de koopovereenkomst zijn de volgende additionele artikelen van toepassing: ouderdomsclausule, asbestclausule, royementskosten en meetinstructie.
Lees volledige omschrijving
De woning is door de jaren heen gemoderniseerd. In 2014 is de woning verbouwd. De voor- en achtergevel, vloer en dak zijn daarbij geïsoleerd. De zijgevel was in een eerder stadium al geïsoleerd. De buitenzijde van de woning is voor het laatst in 2023 volledig geschilderd. De buitenmuur is opnieuw gevoegd en geïmpregneerd. Dit alles zorgt voor een comfortabel huis met een verzorgde uitstraling.
Indeling
Indeling begane grond:Via de entree kom je in de hal met toilet en trapopgang naar de verdieping. De ruime en lichte woonkamer is verdeeld in twee sfeervolle gedeeltes. Aan de voorzijde bevindt zich een gezellig zitgedeelte met haard, terwijl aan de achterzijde een tweede royale zithoek is gecreëerd. Dankzij de openslaande deuren is er direct contact met de achtertuin.
Aansluitend bevindt zich de gezellige woon-eetkeuken in U-opstelling, voorzien van diverse inbouwapparatuur.
Eerste verdieping:
Op de eerste verdieping zijn drie slaapkamers aanwezig. Aan de achterzijde bevindt zich de ruime ouderslaapkamer met vaste kasten en daarnaast nog een extra slaapkamer. Aan de voorzijde ligt een flinke, zonnige slaapkamer. Ook vind je hier de in 2023 vergrote luxe badkamer, voorzien van een inloopdouche en een dubbel wastafelmeubel. Op de overloop is daarnaast een separaat tweede toilet aanwezig.
Tweede verdieping:
De tweede verdieping is verrassend ruim en praktisch ingedeeld met nog eens twee slaapkamers en een tweede badkamer. Zowel aan de voor- als achterzijde bevindt zich een ruime slaapkamer, beide voorzien van een dakkapel. Hierdoor is ook deze verdieping heerlijk licht. De tweede badkamer beschikt over een douche en wastafelmeubel. Op de overloop is een kast aanwezig met aansluiting voor wasmachine en droger. Boven deze verdieping bevindt zich bovendien nog een bergvliering.
Tuin:
De buitenruimte is nog een van de grote pluspunten van deze woning. Naast een voortuin en achtertuin beschikt de woning over een royale zonnige en beschutte zijtuin. Door de gunstige ligging, de ruimte en de bezonning zijn hier eenvoudig meerdere terrassen te creëren. Of je nu wilt genieten van de zon, wilt tuinieren of ruimte zoekt voor spelende kinderen: deze tuin biedt volop mogelijkheden. Achter in de tuin bevindt zich de ruime garage, die momenteel in gebruik is als berging.
Bijzonderheden
* Gelegen in de geliefde Victorwijk, nabij verschillende basisscholen;* Rustige straat in een prettige woonomgeving;
* Aan de zij- en achterzijde uitgebouwd;
* Perceeloppervlakte 295 m²;
* 5 slaapkamers;
* 2 badkamers;
* Royale woonkamer van circa 40 m²;
* Gezellige woon-eetkeuken;
* 9 zonnepanelen;
* In 2014 verbouwd en volledig geïsoleerd;
* In 2023 volledig geschilderd aan de buitenzijde;
* Buitenmuur opnieuw gevoegd en geïmpregneerd;
* Tweede verdieping met dakkapellen aan voor- en achterzijde;
* Energielabel B;
* Mogelijkheid om parkeergelegenheid op eigen terrein te realiseren;
* Op korte afstand van uitvalswegen;
* Op de koopovereenkomst zijn de volgende additionele artikelen van toepassing: ouderdomsclausule, asbestclausule, royementskosten en meetinstructie.
Kenmerken
| Bouw en ligging | |
|---|---|
| Soort woning | Eengezinswoning |
| Type woning | Hoekwoning |
| Bouwjaar | ca. 1966 |
| Ligging | In woonwijk |
| Dak | Zadeldak |
| Oppervlakten en inhoud | |
| Perceeloppervlakte | 295 m² |
| Woonoppervlakte | ca. 156 m² |
| Externe bergruimte | ca. 23 m² |
| Inhoud | ca. 532 m³ |
| Aantal kamers | 6 |
| Energie en onderhoud | |
| Energielabel | B |
| Isolatie | Volledig geisoleerd |
| Verwarming | CV combiketel, Vloerverwarming gedeeltelijk |
| Verwarming CV merk/type | Nefit Smart Line HR |
| Verwarming CV bouwjaar | 2008 |
| Warm water | CV combiketel |
| Onderhoud binnen | Goed |
| Onderhoud buiten | Goed |
| Onderdelen | Zonnepanelen |
| Tuin | |
| Tuin | Achtertuin, Voortuin, Zijtuin |
| Ligging tuin | Noord-oost |
| Kwaliteit tuin | Normaal |
| Garage en parkeren | |
| Garage | Vrijstaande stenen garage |
| Parkeerfaciliteiten | Openbaar parkeren, Op eigen terrein |
| Parkeercapaciteit | 1 |