Coremolen 5 M17
Nieuw in verkoop
2211 BM Noordwijkerhout Vraagprijs: € 379.000,- K.K.
Bouwjaar
ca. 2013
Oppervlakte
ca. 67 m²
Kamers
3 Kamers
Energielabel
A+
Omschrijving
Van harte welkom in dit lichte en sfeervolle 3-kamerappartement, midden in het levendige centrum van Noordwijkerhout!
Of je nu op zoek bent naar je eerste eigen plek, een volgende stap wilt maken of juist comfortabel wilt ‘downsizen’: dit appartement sluit perfect aan op jouw woonwensen.
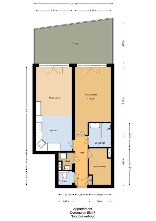
Via de entree bereik je de hal met meterkast, het separate toilet met fonteintje en een praktische inpandige bergruimte met aansluitingen voor de wasmachine en droger. Hier bevindt zich tevens de opstelplaats voor de cv-installatie. Vanuit de hal heb je toegang tot de lichte woonkamer, de open keuken en de twee ruime slaapkamers.
Wonen & Koken:
De ruime woonkamer geniet van veel lichtinval door de grote raampartijen en staat via openslaande deuren direct in verbinding met de royale buitenruimte van circa 26 m².
De moderne keuken in L-opstelling is van alle gemakken voorzien: een 5-pits gaskookplaat, afzuigkap, vaatwasser, koelkast, vriezer, oven en een magnetron.
Slapen & Badkamer:
De hoofdslaapkamer is een fijne, lichte ruimte met meer dan genoeg plek voor een groot tweepersoonsbed en een kastenwand. Bijzonder detail: vanuit deze kamer stap je via openslaande deuren direct je eigen buitenruimte op.
De tweede kamer is multifunctioneel en leent zich ook uitstekend als thuiswerkplek/hobbykamer of inloopkast. De keurig betegelde badkamer is voorzien van een ruime inloopdouche, wastafelmeubel en handdoekradiator.
Jouw eigen buitenplek:
Het royale buitenruimte van circa 26 m² is een echt verlengstuk van de woonkamer. Door de ruimte is er plek genoeg voor zowel een loungeset als een eettafel. De ideale plek om de dag te beginnen met een kop koffie of gezellig te borrelen met vrienden.
Omgeving:
Je woont hier letterlijk om de hoek van de gezellige terrasjes, winkels en restaurants van Noordwijkerhout. Met de fiets ben je binnen circa 15 tot 20 minuten op het strand of in de duinen. Ook uitvalswegen richting Haarlem/Leiden (N206) en Amsterdam/Den Haag (A44) zijn vlot bereikbaar.
Faciliteiten:
Gelegen in de geliefde Bollenstreek ligt recreatie binnen handbereik. Denk aan het Oosterduinsemeer, de Amsterdamse Waterleidingduinen of de Keukenhof.
Voor de sportievelingen zijn er diverse verenigingen en fitnessscholen in de buurt. In de nabije toekomst opent het gloednieuwe zwembad en sporthal 'De Schelft' haar deuren.
Berging/Parkeergarage:
Bij het appartement behoort het verplicht huren van een parkeerplaats in de parkeergarage. Daarnaast kan er gebruik gemaakt worden van de gemeenschappelijke fietsenberging.
De kosten voor de parkeerplaats en de fietsenberging bedragen circa € 138,- voor de parkeerplaats en circa € 9,- voor de huur van de fietsenstalling per maand. Deze kosten (canonbetaling) zijn mogelijk fiscaal aftrekbaar.
*Energielabel A+;
*Gebruikersoppervlakte wonen: circa 68 m²;
*Royale buitenruimte van circa 26 m²;
*Gelegen in het gezellige centrum van Noordwijkerhout;
*De maandelijkse bijdrage voor de VVE bedraagt circa € 302,- per maand, dit is incl. circa € 138,- voor de parkeerplaats en circa € 9,- voor de huur van de fietsenstalling;
*De kosten voor de parkeerplaats en de fietsenberging (canonbetaling) zijn mogelijk fiscaal aftrekbaar;
*Op fietsafstand van de duinen, het strand en recreatieplas het Oosterduinsemeer;
*Het appartement ligt nabij uitvalswegen (N206) richting Haarlem / Leiden en Amsterdam / Den Haag (A44);
*Ov- voorzieningen en sportfaciliteiten zijn op loop/fietsafstand gelegen;
*Op de koopovereenkomst zijn de volgende additionele artikelen van toepassing: Royementskosten en Meetinstructie.
Lees volledige omschrijving
Of je nu op zoek bent naar je eerste eigen plek, een volgende stap wilt maken of juist comfortabel wilt ‘downsizen’: dit appartement sluit perfect aan op jouw woonwensen.
Indeling
Indeling:Via de entree bereik je de hal met meterkast, het separate toilet met fonteintje en een praktische inpandige bergruimte met aansluitingen voor de wasmachine en droger. Hier bevindt zich tevens de opstelplaats voor de cv-installatie. Vanuit de hal heb je toegang tot de lichte woonkamer, de open keuken en de twee ruime slaapkamers.
Wonen & Koken:
De ruime woonkamer geniet van veel lichtinval door de grote raampartijen en staat via openslaande deuren direct in verbinding met de royale buitenruimte van circa 26 m².
De moderne keuken in L-opstelling is van alle gemakken voorzien: een 5-pits gaskookplaat, afzuigkap, vaatwasser, koelkast, vriezer, oven en een magnetron.
Slapen & Badkamer:
De hoofdslaapkamer is een fijne, lichte ruimte met meer dan genoeg plek voor een groot tweepersoonsbed en een kastenwand. Bijzonder detail: vanuit deze kamer stap je via openslaande deuren direct je eigen buitenruimte op.
De tweede kamer is multifunctioneel en leent zich ook uitstekend als thuiswerkplek/hobbykamer of inloopkast. De keurig betegelde badkamer is voorzien van een ruime inloopdouche, wastafelmeubel en handdoekradiator.
Jouw eigen buitenplek:
Het royale buitenruimte van circa 26 m² is een echt verlengstuk van de woonkamer. Door de ruimte is er plek genoeg voor zowel een loungeset als een eettafel. De ideale plek om de dag te beginnen met een kop koffie of gezellig te borrelen met vrienden.
Omgeving:
Je woont hier letterlijk om de hoek van de gezellige terrasjes, winkels en restaurants van Noordwijkerhout. Met de fiets ben je binnen circa 15 tot 20 minuten op het strand of in de duinen. Ook uitvalswegen richting Haarlem/Leiden (N206) en Amsterdam/Den Haag (A44) zijn vlot bereikbaar.
Faciliteiten:
Gelegen in de geliefde Bollenstreek ligt recreatie binnen handbereik. Denk aan het Oosterduinsemeer, de Amsterdamse Waterleidingduinen of de Keukenhof.
Voor de sportievelingen zijn er diverse verenigingen en fitnessscholen in de buurt. In de nabije toekomst opent het gloednieuwe zwembad en sporthal 'De Schelft' haar deuren.
Berging/Parkeergarage:
Bij het appartement behoort het verplicht huren van een parkeerplaats in de parkeergarage. Daarnaast kan er gebruik gemaakt worden van de gemeenschappelijke fietsenberging.
De kosten voor de parkeerplaats en de fietsenberging bedragen circa € 138,- voor de parkeerplaats en circa € 9,- voor de huur van de fietsenstalling per maand. Deze kosten (canonbetaling) zijn mogelijk fiscaal aftrekbaar.
Bijzonderheden
*Bouwjaar circa 2013;*Energielabel A+;
*Gebruikersoppervlakte wonen: circa 68 m²;
*Royale buitenruimte van circa 26 m²;
*Gelegen in het gezellige centrum van Noordwijkerhout;
*De maandelijkse bijdrage voor de VVE bedraagt circa € 302,- per maand, dit is incl. circa € 138,- voor de parkeerplaats en circa € 9,- voor de huur van de fietsenstalling;
*De kosten voor de parkeerplaats en de fietsenberging (canonbetaling) zijn mogelijk fiscaal aftrekbaar;
*Op fietsafstand van de duinen, het strand en recreatieplas het Oosterduinsemeer;
*Het appartement ligt nabij uitvalswegen (N206) richting Haarlem / Leiden en Amsterdam / Den Haag (A44);
*Ov- voorzieningen en sportfaciliteiten zijn op loop/fietsafstand gelegen;
*Op de koopovereenkomst zijn de volgende additionele artikelen van toepassing: Royementskosten en Meetinstructie.
De verkoper aan het woord:
Wat ik persoonlijk erg prettig vond, is dat je in het voorjaar en de zomer de dag heerlijk kan beginnen buiten op je terras met de opkomende zon onder het genot van een kopje koffie.
Kenmerken
| Bouw en ligging | |
|---|---|
| Soort appartement | Bovenwoning |
| Bouwjaar | ca. 2013 |
| Ligging | In centrum |
| Dak | Plat dak |
| Oppervlakten en inhoud | |
| Woonoppervlakte | ca. 67 m² |
| Inhoud | ca. 219 m³ |
| Aantal kamers | 3 |
| Energie en onderhoud | |
| Energielabel | A+ |
| Isolatie | Volledig geisoleerd |
| Verwarming/warm water | CV combiketel |
| Merk/type | NEFIT PROLINE HRC24 CW3 |
| Bouwjaar | 2013 |
| Onderhoud binnen | Goed |
| Onderhoud buiten | Goed |
| Tuin | |
| Tuin | Achtertuin |
| Kwaliteit tuin | Normaal |
| Garage en parkeren | |
| Garage | Parkeerkelder |
| Vereniging van eigenaars | |
| Servicekosten | € 156,- Per maand |
| VvE - Inschrijving KvK | ja |
| VvE - Jaarlijkse vergadering | ja |
| VvE - Periodieke bijdrage | ja |
| VvE - Reservefonds aanwezig | ja |
| VvE - Onderhoudsplan | ja |
| VvE - Opstalverzekering | ja |
| Overige kenmerken | |
| Woonlaag | |