Bouwjaar
ca. 1973
Oppervlakte
ca. 114 m²
Kamers
5 Kamers
Energielabel
E
Omschrijving
In de rustige en kindvriendelijke Componistenwijk van Lisse bevindt zich deze hoekwoning met een unieke ligging aan de rand van de wijk. Hier heeft u vanaf de woonverdieping, uitzicht over de dijk, de jachthaven van Lisse en de Ringvaart van de Haarlemmermeer. Scholen, diverse speelgelegenheden en winkelcentrum De Poel liggen op slechts enkele minuten lopen. De woning biedt veel leefruimte, een circa 15 meter diepe achtertuin, een inpandige garage, parkeergelegenheid op eigen terrein en maar liefst vier slaapkamers.
Circa 15 meter diepe op oosten gelegen achtertuin met zicht op groen. Aan de achterzijde is er een watergang.
* Inpandige garage: ca. 23 m²;
* Bouwjaar: ca. 1973;
* Perceeloppervlakte: 184 m²;
* Scholen, speelplekken en winkelcentrum De Poel op loopafstand;
* Deze woning moet in zijn geheel worden aangepast aan de eisen van de tijd. Dit creëert de kans om deze woning volledig naar eigen smaak en woonwensen te transformeren;
* Op de koopovereenkomst zijn de volgende additionele artikelen van toepassing: Ouderdomsclausule, Asbestclausule, Royementskosten, Nooit zelfbewoningsclausule, Meetinstructie en As is Where is clausule.
Lees volledige omschrijving
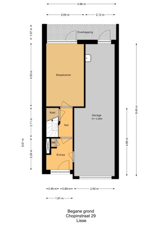
Begane grond
De ruime voortuin met oprit leidt naar de entree van de woning. In de hal bevinden zich de meterkast en de toegang tot de inpandige garage en de achtergelegen hal. Vanuit deze hal bereik je de kamer op de begane grond, voorzien van een deur naar de achtertuin. Ideaal om in de toekomst te gebruiken als werkruimte, logeerkamer of slaapkamer. Ook vanuit de garage is de tuin te bereiken.Circa 15 meter diepe op oosten gelegen achtertuin met zicht op groen. Aan de achterzijde is er een watergang.
Eerste verdieping
Via de trapopgang kom je op de overloop van de eerste verdieping. Hier bevinden zich het toilet, de gesloten keuken en de woonkamer. De woonkamer is licht en kijkt aan de achterzijde uit over het water. Via een deur is het balkon bereikbaar.Tweede verdieping
De tweede verdieping biedt een overloop, drie goed bemeten slaapkamers en de badkamer. De badkamer is voorzien van een douche, toilet en wastafel. De slaapkamer aan de voorzijde beschikt over een dakkapel, waardoor de ruimte extra licht en praktisch is. Aan de achterzijde kijken de slaapkamers vrij weg over de omgeving.Bijzonderheden
* GBO: ca. 114 m²;* Inpandige garage: ca. 23 m²;
* Bouwjaar: ca. 1973;
* Perceeloppervlakte: 184 m²;
* Scholen, speelplekken en winkelcentrum De Poel op loopafstand;
* Deze woning moet in zijn geheel worden aangepast aan de eisen van de tijd. Dit creëert de kans om deze woning volledig naar eigen smaak en woonwensen te transformeren;
* Op de koopovereenkomst zijn de volgende additionele artikelen van toepassing: Ouderdomsclausule, Asbestclausule, Royementskosten, Nooit zelfbewoningsclausule, Meetinstructie en As is Where is clausule.
Kenmerken
| Bouw en ligging | |
|---|---|
| Soort woning | Eengezinswoning |
| Type woning | Hoekwoning |
| Bouwjaar | ca. 1973 |
| Ligging | Aan water, In woonwijk |
| Dak | Plat dak |
| Oppervlakten en inhoud | |
| Perceeloppervlakte | 184 m² |
| Woonoppervlakte | ca. 114 m² |
| Overige inpandige ruimte | ca. 24 m² |
| Gebouwgebonden buitenruimte | ca. 11 m² |
| Inhoud | ca. 445 m³ |
| Aantal kamers | 5 |
| Energie en onderhoud | |
| Energielabel | E |
| Isolatie | Gedeeltelijk dubbel glas |
| Verwarming | CV ketel |
| Verwarming CV merk/type | Remeha Tzerra Ace |
| Verwarming CV bouwjaar | 2021 |
| Onderhoud binnen | Redelijk |
| Onderhoud buiten | Redelijk |
| Tuin | |
| Tuin | Achtertuin, Voortuin |
| Ligging tuin | Zuid-oost |
| Kwaliteit tuin | Normaal |
| Garage en parkeren | |
| Garage | Inpandige garage |
| Garage voorziening | Voorzien van verwarming, Voorzien van elektra, Voorzien van water |
| Parkeerfaciliteiten | Op eigen terrein |