Bouwjaar
ca. 1976
Oppervlakte
ca. 81 m²
Kamers
3 Kamers
Energielabel
B
Omschrijving
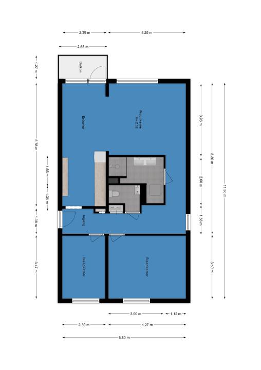
Dit heerlijke en lichte hoekappartement met twee slaapkamers en een zonnig balkon op het zuidwesten is gelegen op de derde en tevens bovenste verdieping van een kleinschalig appartementencomplex.
Dankzij de hoekligging en de grote raampartijen geniet het appartement van veel natuurlijk licht, een prettig ruimtelijk gevoel en een fijn uitzicht. Het complex is de afgelopen jaren verduurzaamd. In 2025 zijn de gevels en het dak geïsoleerd.
Entree, hal met meterkast, modern separaat toilet (grijs/wit kleurstelling) en toegang tot alle vertrekken. De woonkamer voelt ruim en aangenaam aan dankzij de grote raampartijen.
Vanuit de woonkamer is het balkon, gelegen op het zuidwesten, bereikbaar. De half open keuken, uitgevoerd in een praktische parallelopstelling, is voorzien van diverse inbouwapparatuur zoals 5-pitskookplaat, afzuigkap, combi-oven/magnetron, koel-vriescombinatie en vaatwasmachine.
Kamers & badkamer:
Het appartement beschikt over twee goed bemeten slaapkamers, waarvan één kamer momenteel is ingericht als inloopkast.
De moderne badkamer is tevens uitgevoerd in een grijs-witte kleurstelling en is voorzien van een ruime regendouche, een dubbele wastafel met badkamermeubel, aansluitingen voor de wasmachine en droger, en een ruimtebesparende nis voor het plaatsen van bijvoorbeeld badhanddoeken.
Entree:
Gezamenlijk entree met brievenbussen en het trappenhuis. Het appartement heeft geen externe berging, wel heeft u de beschikking over twee fietsenstallingen buiten het complex.
Op dit moment wordt er ook een garagebox binnen het Braamboscomplex te koop aangeboden. De garage is separaat te verwerven voor een vraagprijs van € 36.000,- kosten koper. Een praktische en waardevolle aanvulling, geschikt voor het stallen van een auto en/of het creëren van extra bergruimte.
Omgeving:
Het appartementencomplex bevindt zich in een rustige omgeving en op fietsafstand van het gezellige (winkel)centrum van Noordwijkerhout. Voor natuurliefhebbers is de locatie ideaal: ook de duinen en het strand bevinden zich op fietsafstand. Bij de nabijgelegen recreatieplas het Oosterduinsemeer kunt u zwemmen, diverse watersportactiviteiten uitoefenen of simpelweg ontspannen bij een van de gezellige horecagelegenheden.
Met de auto of het openbaar vervoer bereikt u binnen korte tijd de diverse uitvalswegen richting Noordwijk, Leiden, Haarlem (N206) en de A44 richting o.a. Schiphol en Amsterdam.
* Woonoppervlakte: ca. 81 m2;
* Energielabel B;
* De servicekosten bedragen circa € 236,- per maand;
* Het voorshot van de verwarmingskosten bedraagt circa € 130,- per maand;
* Het appartement heeft geen externe berging;
* Het gehele appartement is voorzien van kunststofkozijnen en isolatieglas;
* Door de centrale ligging is het centrum van Noordwijkerhout, maar ook het duingebied en het strand, en tevens het Oosterduinse meer op korte afstand per fiets of auto bereikbaar;
* Daarnaast zijn Haarlem, Leiden, Amsterdam, Den Haag en Schiphol snel aan te rijden (A44 en A4).
Lees volledige omschrijving
Dankzij de hoekligging en de grote raampartijen geniet het appartement van veel natuurlijk licht, een prettig ruimtelijk gevoel en een fijn uitzicht. Het complex is de afgelopen jaren verduurzaamd. In 2025 zijn de gevels en het dak geïsoleerd.
Indeling
Appartement:Entree, hal met meterkast, modern separaat toilet (grijs/wit kleurstelling) en toegang tot alle vertrekken. De woonkamer voelt ruim en aangenaam aan dankzij de grote raampartijen.
Vanuit de woonkamer is het balkon, gelegen op het zuidwesten, bereikbaar. De half open keuken, uitgevoerd in een praktische parallelopstelling, is voorzien van diverse inbouwapparatuur zoals 5-pitskookplaat, afzuigkap, combi-oven/magnetron, koel-vriescombinatie en vaatwasmachine.
Kamers & badkamer:
Het appartement beschikt over twee goed bemeten slaapkamers, waarvan één kamer momenteel is ingericht als inloopkast.
De moderne badkamer is tevens uitgevoerd in een grijs-witte kleurstelling en is voorzien van een ruime regendouche, een dubbele wastafel met badkamermeubel, aansluitingen voor de wasmachine en droger, en een ruimtebesparende nis voor het plaatsen van bijvoorbeeld badhanddoeken.
Entree:
Gezamenlijk entree met brievenbussen en het trappenhuis. Het appartement heeft geen externe berging, wel heeft u de beschikking over twee fietsenstallingen buiten het complex.
Op dit moment wordt er ook een garagebox binnen het Braamboscomplex te koop aangeboden. De garage is separaat te verwerven voor een vraagprijs van € 36.000,- kosten koper. Een praktische en waardevolle aanvulling, geschikt voor het stallen van een auto en/of het creëren van extra bergruimte.
Omgeving:
Het appartementencomplex bevindt zich in een rustige omgeving en op fietsafstand van het gezellige (winkel)centrum van Noordwijkerhout. Voor natuurliefhebbers is de locatie ideaal: ook de duinen en het strand bevinden zich op fietsafstand. Bij de nabijgelegen recreatieplas het Oosterduinsemeer kunt u zwemmen, diverse watersportactiviteiten uitoefenen of simpelweg ontspannen bij een van de gezellige horecagelegenheden.
Met de auto of het openbaar vervoer bereikt u binnen korte tijd de diverse uitvalswegen richting Noordwijk, Leiden, Haarlem (N206) en de A44 richting o.a. Schiphol en Amsterdam.
Bijzonderheden
* Bouwjaar 1976;* Woonoppervlakte: ca. 81 m2;
* Energielabel B;
* De servicekosten bedragen circa € 236,- per maand;
* Het voorshot van de verwarmingskosten bedraagt circa € 130,- per maand;
* Het appartement heeft geen externe berging;
* Het gehele appartement is voorzien van kunststofkozijnen en isolatieglas;
* Door de centrale ligging is het centrum van Noordwijkerhout, maar ook het duingebied en het strand, en tevens het Oosterduinse meer op korte afstand per fiets of auto bereikbaar;
* Daarnaast zijn Haarlem, Leiden, Amsterdam, Den Haag en Schiphol snel aan te rijden (A44 en A4).
De verkoper aan het woord:
Wat we echt gaan missen is het vrije uitzicht en licht in de woning, dat gaf elke dag een gevoel van ruimte en rust.
Kenmerken
| Bouw en ligging | |
|---|---|
| Soort appartement | Portiekflat |
| Bouwjaar | ca. 1976 |
| Ligging | Aan rustige weg, In woonwijk, Nabij het centrum |
| Dak | Plat dak |
| Oppervlakten en inhoud | |
| Woonoppervlakte | ca. 81 m² |
| Inhoud | ca. 269 m³ |
| Aantal kamers | 3 |
| Woonlaag | 4 |
| Energie en onderhoud | |
| Energielabel | B |
| Isolatie | Dakisolatie, Dubbel glas |
| Verwarming | Blokverwarming |
| Warm water | Electrische boiler eigendom |
| Onderhoud binnen | Goed |
| Onderhoud buiten | Goed |
| Balkon | |
| Balkon | 1 |
| Garage en parkeren | |
| Parkeerfaciliteiten | Openbaar parkeren |
| Vereniging van eigenaars | |
| Servicekosten | € 236,- Per maand |
| VvE - Inschrijving KvK | ja |
| VvE - Jaarlijkse vergadering | ja |
| VvE - Periodieke bijdrage | ja |
| VvE - Reservefonds aanwezig | ja |
| VvE - Onderhoudsplan | ja |
| VvE - Opstalverzekering | ja |