Bouwjaar
ca. 2013
Oppervlakte
ca. 187 m²
Kamers
5 Kamers
Energielabel
A
Omschrijving
Vrijstaande woning met vrij uitzicht over de bollenvelden op royaal perceel.
Altijd al landelijk willen wonen met alle voorzieningen van Voorhout en de omliggende dorpen op korte afstand? Aan de rustige Akervoorderlaan, te midden van de kenmerkende bollenvelden van Voorhout, staat deze vrijstaande woning met aangebouwde garage en royale tuin. Deze ruime woning van circa 187 m² GBO, heeft een woonprogramma op de begane grond, een zonnige woonkamer en open keuken van in totaal ruim 70 m² en ligt op een ruim perceel van in totaal ca. 2.353 m².
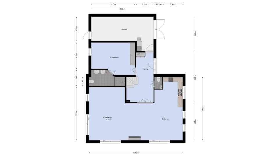
Via de oprit met parkeergelegenheid voor meerdere auto’s bereikt u de entree van de woning. De hal is voorzien van een meterkast, separate toiletruimte met fontein, slaapkamer met en-suite badkamer en trapopgang naar de eerste verdieping. Vanuit de centrale hal heeft u tevens toegang tot de woonkamer en aangebouwde garage. Nagenoeg de gehele begane grond is voorzien van vloerverwarming
De ruime en lichte woonkamer heeft grote raampartijen die zorgen voor veel daglichttoetreding en een prachtig uitzicht over de omliggende bollenvelden. De sfeervolle gashaard vormt het centrale punt van de woonkamer. De ruimte staat in open verbinding met de keuken, die is ingericht met diverse inbouwapparatuur, waaronder een vaatwasser, oven/magnetron, koelkast, vriezer, afzuigkap en 5-pits gasfornuis.
Op de begane grond bevindt zich tevens een slaapkamer met en-suite badkamer, uitgerust met een inloopdouche, dubbele wastafel en toilet. Deze slaapkamer biedt een uitstekende mogelijkheid om gelijkvloers te wonen, of kan dienen als logeerkamer e/o kantoorruimte aan huis. Aansluitend aan de woning heeft u de beschikking even een aangebouwde garage (ca. 25 m²), welk voorzien is van elektra, wateraansluiting en vloerverwarming. Hier bevinden zich tevens de aansluitingen voor wasmachine en droger.
Eerste verdieping:
Vanaf de overloop zijn drie slaapkamers en badkamer bereikbaar. De kamers zijn goed van formaat en één van de slaapkamers beschikt over een vaste kastenwand. De badkamer is compleet uitgevoerd en voorzien van een ligbad, aparte douche, twee wastafels en toilet.
De opstelplaats voor de cv-installatie bevindt zich in de slaapkamer in een afgesloten ruimte.
Zolder:
Via een vlizotrap is de vliering bereikbaar, die extra bergruimte biedt.
Buitenruimte:
Rondom de woning ligt een verzorgde en deels beschutte ruime tuin met verschillende zitplekken waar u op ieder moment van de dag heerlijk kunt genieten van de zon. Aan de achterzijde bevindt zich een gezellige zithoek met glazen wand en uitzicht op de professionele jeu-de-boulesbaan. Naast de woning heeft u de beschikking over extra bergruimte in de externe berging, en een overkapping die gebruikt kan worden als carport of opslag.
Ligging:
De ligging, midden in de bollenstreek, zorgt voor een vrij uitzicht aan alle zijden en een gevoel van rust en ruimte, terwijl dorpsvoorzieningen, scholen en uitvalswegen richting Leiden, Den Haag en Amsterdam eenvoudig bereikbaar zijn.
Voor een gedeelte van circa 1000 m² is de bestemming Wonen en Tuin van toepassing. Voor het overige gedeelte van het perceel is de bestemming Agrarisch - Bollenteelt - bollenzone 1. Dit gedeelte is momenteel gras. Dit wordt thans toegestaan door de gemeente maar is dus niet conform het bestemmingsplan. Het is derhalve niet toegestaan om hier een extra woning/opstal te bouwen.
Perceel Voorhout sectie B nr 7931:
Dit perceel is belast met recht van Opstal met als gerechtigde Liander en is belast met een Opstalrecht nutsvoorzieningen met als gerechtigde de Gemeente Teylingen.
Percelen Voorhout sectie B nrs. 7932 en 7933:
Deze percelen zijn belast met een Opstalrecht Nutsvoorzieningen met als gerechtigde de gemeente Teylingen.
Deze percelen zijn belast met een Opstalrecht Nutsvoorzieningen op gedeelte van perceel met als gerechtigde Liander. En de gemeente Teylingen met betrekking tot nummer 7933.
Alle percelen zijn belast met een Opstalrecht Nutsvoorzieningen.
Perceel Voorhout sectie B nr 7932:
In de bocht van de Akervoorderlaan en de Johan Speelmanweg is een gedeelte van dit perceel in gebruik als openbare weg.
Lees volledige omschrijving
Altijd al landelijk willen wonen met alle voorzieningen van Voorhout en de omliggende dorpen op korte afstand? Aan de rustige Akervoorderlaan, te midden van de kenmerkende bollenvelden van Voorhout, staat deze vrijstaande woning met aangebouwde garage en royale tuin. Deze ruime woning van circa 187 m² GBO, heeft een woonprogramma op de begane grond, een zonnige woonkamer en open keuken van in totaal ruim 70 m² en ligt op een ruim perceel van in totaal ca. 2.353 m².
Indeling
Begane grond:Via de oprit met parkeergelegenheid voor meerdere auto’s bereikt u de entree van de woning. De hal is voorzien van een meterkast, separate toiletruimte met fontein, slaapkamer met en-suite badkamer en trapopgang naar de eerste verdieping. Vanuit de centrale hal heeft u tevens toegang tot de woonkamer en aangebouwde garage. Nagenoeg de gehele begane grond is voorzien van vloerverwarming
De ruime en lichte woonkamer heeft grote raampartijen die zorgen voor veel daglichttoetreding en een prachtig uitzicht over de omliggende bollenvelden. De sfeervolle gashaard vormt het centrale punt van de woonkamer. De ruimte staat in open verbinding met de keuken, die is ingericht met diverse inbouwapparatuur, waaronder een vaatwasser, oven/magnetron, koelkast, vriezer, afzuigkap en 5-pits gasfornuis.
Op de begane grond bevindt zich tevens een slaapkamer met en-suite badkamer, uitgerust met een inloopdouche, dubbele wastafel en toilet. Deze slaapkamer biedt een uitstekende mogelijkheid om gelijkvloers te wonen, of kan dienen als logeerkamer e/o kantoorruimte aan huis. Aansluitend aan de woning heeft u de beschikking even een aangebouwde garage (ca. 25 m²), welk voorzien is van elektra, wateraansluiting en vloerverwarming. Hier bevinden zich tevens de aansluitingen voor wasmachine en droger.
Eerste verdieping:
Vanaf de overloop zijn drie slaapkamers en badkamer bereikbaar. De kamers zijn goed van formaat en één van de slaapkamers beschikt over een vaste kastenwand. De badkamer is compleet uitgevoerd en voorzien van een ligbad, aparte douche, twee wastafels en toilet.
De opstelplaats voor de cv-installatie bevindt zich in de slaapkamer in een afgesloten ruimte.
Zolder:
Via een vlizotrap is de vliering bereikbaar, die extra bergruimte biedt.
Buitenruimte:
Rondom de woning ligt een verzorgde en deels beschutte ruime tuin met verschillende zitplekken waar u op ieder moment van de dag heerlijk kunt genieten van de zon. Aan de achterzijde bevindt zich een gezellige zithoek met glazen wand en uitzicht op de professionele jeu-de-boulesbaan. Naast de woning heeft u de beschikking over extra bergruimte in de externe berging, en een overkapping die gebruikt kan worden als carport of opslag.
Ligging:
De ligging, midden in de bollenstreek, zorgt voor een vrij uitzicht aan alle zijden en een gevoel van rust en ruimte, terwijl dorpsvoorzieningen, scholen en uitvalswegen richting Leiden, Den Haag en Amsterdam eenvoudig bereikbaar zijn.
Bijzonderheden
Bestemmingsplan:Voor een gedeelte van circa 1000 m² is de bestemming Wonen en Tuin van toepassing. Voor het overige gedeelte van het perceel is de bestemming Agrarisch - Bollenteelt - bollenzone 1. Dit gedeelte is momenteel gras. Dit wordt thans toegestaan door de gemeente maar is dus niet conform het bestemmingsplan. Het is derhalve niet toegestaan om hier een extra woning/opstal te bouwen.
Perceel Voorhout sectie B nr 7931:
Dit perceel is belast met recht van Opstal met als gerechtigde Liander en is belast met een Opstalrecht nutsvoorzieningen met als gerechtigde de Gemeente Teylingen.
Percelen Voorhout sectie B nrs. 7932 en 7933:
Deze percelen zijn belast met een Opstalrecht Nutsvoorzieningen met als gerechtigde de gemeente Teylingen.
Deze percelen zijn belast met een Opstalrecht Nutsvoorzieningen op gedeelte van perceel met als gerechtigde Liander. En de gemeente Teylingen met betrekking tot nummer 7933.
Alle percelen zijn belast met een Opstalrecht Nutsvoorzieningen.
Perceel Voorhout sectie B nr 7932:
In de bocht van de Akervoorderlaan en de Johan Speelmanweg is een gedeelte van dit perceel in gebruik als openbare weg.
De verkoper aan het woord:
Het is voor ons genieten geweest van de ruimte, de rust en van het vrije uitzicht over de bollenvelden. De schitterende zonsopkomsten en de mooie zonsondergangen die je het hele jaar door kan volgen vanuit de woning.
Kenmerken
| Bouw en ligging | |
|---|---|
| Soort woning | Eengezinswoning |
| Type woning | Vrijstaande woning |
| Bouwjaar | ca. 2013 |
| Ligging | Vrij uitzicht, Aan rustige weg, Landelijke gelegen |
| Dak | Zadeldak |
| Oppervlakten en inhoud | |
| Perceeloppervlakte | ca. 2353 m² |
| Woonoppervlakte | ca. 187 m² |
| Overige inpandige ruimte | ca. 34 m² |
| Externe bergruimte | ca. 36 m² |
| Inhoud | ca. 812 ³ |
| Aantal kamers | 5 |
| Energie en onderhoud | |
| Energielabel | A |
| Isolatie | Volledig geisoleerd |
| Verwarming | CV ketel |
| Verwarming CV merk/type | Interval HR Kombi KOMPAKT 28 |
| Verwarming CV bouwjaar | 2013 |
| Warm water | CV combiketel |
| Warm water CV merk/type | Interval HR Kombi KOMPAKT 28 |
| Warm water CV bouwjaar | 2013 |
| Onderhoud binnen | Goed |
| Onderhoud buiten | Goed |
| Onderdelen | Zonnepanelen |
| Tuin | |
| Tuin | Tuin rondom |
| Ligging tuin | Zuid |
| Kwaliteit tuin | Verzorgd |
| Garage en parkeren | |
| Garage | Aangebouwde stenen garage |
| Garage voorziening | Voorzien van elektra, Voorzien van water |
| Parkeerfaciliteiten | Op eigen terrein |
| Berging/schuur | |
| Berging | Vrijstaande houten schuur |