Einsteinstraat 3
Nieuw in verhuur

2181 AA Hillegom
Huur: € 39.600,- per jaar exclusief BTW

Omschrijving

Ruime en multifunctionele bedrijfsruimte met kantoorruimte en privé parkeerplaatsen op het bedrijventerrein Hillegommerbeek nabij het centrum en tegenover de nieuwbouwwijk Ringoevers, maar ook op korte afstand van de uitvalswegen naar het regionale en landelijke verkeersnet. In het pand is een stroomaansluiting van 3 x 63 Ampère aanwezig wat de gebruiksmogelijkheden aanzienlijk vergroot!

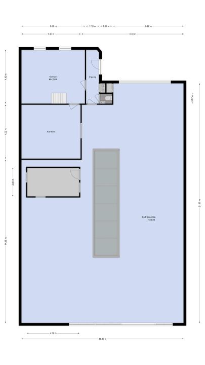
Indeling bedrijfsruimte:
De bedrijfsruimte kent een oppervlakte van circa 280 m² wat in combinatie met de vrije hoogte van circa 6,30 meter en de aanwezige lichtstraat zorgt voor een courante hal voor bijvoorbeeld opslag maar waar het daarnaast ook uitermate plezierig werken is. Door de ruime bestemming van het pand (hier zijn bedrijven toegestaan tot en met categorie 3.2 van de Staat van Bedrijfsactiviteiten) is er een scala aan bedrijfsactiviteiten mogelijk op deze locatie waarbij gedacht kan worden aan opslag, productie, werkplaatsactiviteiten, of een combinatie hiervan. De bedrijfsruimte is voorzien van een grote overheaddeur waardoor ook vrachtauto's gemakkelijk naar binnen kunnen rijden. Verder is de ruimte ook bereikbaar via de separate loopdeur. In de hal is thans nog een aparte cabine aanwezig die dienst doet als kantoor- kantineruimte. Deze is echter los op de vloer geplaatst en zou dus ook verwijderd kunnen worden. Tenslotte bevindt zich in de hal nog een pantry en is de ruimte uitgerust met verlichting en verwarming door middel van een heater.

Kantoorruimte:
Behoudens de bedrijfsruimte is er ook kantoorruimte in het pand aanwezig wat is verdeeld over de begane grond (circa 65 m²) en de eerste verdieping (circa 38 m²). De kantoren zijn functioneel van opzet en afwerking en uitgevoerd met een toilet, een pantry (op de eerste verdieping), verwarming door middel van radiatoren en een systeemplafond met verlichting.

Buitenruimte:
Door de directe ligging aan de straat en de breedte van het perceel kan er zowel goed geparkeerd worden als dat er zonder problemen geladen en gelost kan worden. In totaal kunnen er op het buitenterrein maximaal 6 auto's geparkeerd worden waarbij opgemerkt dient te worden dat er dan ook auto's vóór de overheaddeur staan.

Bestemming:
Zoals gezegd geeft het bestemmingsplan aan dat op deze locatie bedrijven tot en met categorie 3.2 van de Staat van Bedrijfsactiviteiten zich hier mogen vestigen. Daarnaast geeft het bestemmingsplan aan dat ook autoshowrooms op deze locatie gevestigd mogen worden. Echter, de verhuurder vindt het pand ongeschikt voor autobedrijven en heeft dan ook besloten om expliciet geen autobedrijf in het pand toe te staan.

Resumerend:
Bent u op zoek naar een courante, royale en lichte bedrijfsruimte met bijbehorende kantoor- en buitenruimte op een prima en goed ontsloten bedrijventerrein, dan is deze ruim 6 meter hoge bedrijfshal die per direct beschikbaar is wellicht een buitenkans voor u!

Huurovereenkomst

Standaard ROZ-model huurovereenkomst voor Kantoorruimte en andere bedrijfsruimte in de zin van artikel 7: 230a BW

Zekerheidsstelling

Een bankgarantie of waarborgsom ter grootte van een kwartaalverplichting voor huur alsmede over het totaal verschuldigde B.T.W.

Indexering

Jaarlijks, op basis van de wijziging van het maandprijsindexcijfer volgens de consumentenprijsindex (CPI), reeks CPI-alle huishoudens (2015=100), gepubliceerd door het Centraal Bureau voor de Statistiek.
De aangepaste huurprijs zal nimmer lager zijn dan de laatst geldende huurprijs.

Bestemming

De huurder dient zich te conformeren aan het vigerende bestemmingsplan.

Algemeen

- vestigings-, milieu- alsmede evt. bouwvergunning dienen door de huurders zelf schriftelijk te worden aangevraagd bij het College van Burgemeester en Wethouders van de gemeente.
- additionele eisen, onder andere op het gebied van de brandweereisen als gevolg van het verstrekken van vergunningen komen voor rekening van huurders.

Lees volledige omschrijving

Kenmerken

Prijs
Huursom € 39.600,- per jaar exclusief BTW
Type
Soort bog Kantoorruimte, Bedrijfsruimte
Kenmerken
Bouwjaar ca. 1989
Voorzieningen
Bedrijfsruimte v.v. overheaddeur, aparte loopdeur, verlichting, verwarming, lichtstraat, laad- en losmogelijkheden, pantry
Kantoorruimte v.v. systeemplafond, verlichting, verwarming, toilet, pantry
Parkeerplaatsen
Aantal parkeerplaatsen 6
Woonruimte
Voorzien woonruimte Nee

Deel dit object


Einsteinstraat 3 , 2181 AA Hillegom
Huur: € 39.600,- per jaar exclusief BTW